Host & Stay - Lime Tree House
Preview only — see all hotel photos
See all 21 photos 1 /
21
9.6
14 anmeldelser
Best options for your travel dates
Vis hotel på kort
Host & Stay - Lime Tree House
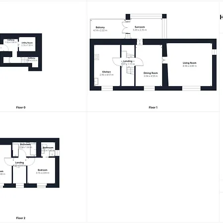
Host & Stay - Lime Tree House har 2 værelser og ligger mindre end 5 minutters gåtur fra Digley Reservoir. Der tilbydes kaffe- og tefaciliteter, et opholdsområde, tv med satellitkanaler på denne indlogering.
Warton Old Rectory er ca. 15 minutters kørsel væk. Villa er placeret 90 km til Leeds. Du kan komme til Fairy Steps om få minutter i bil.
Gæsterne kan benytte 2 badeværelser med en brusekabine, separat toilet og et badekar.
Villaen har et fuldt udstyret køkken til selvforplejning. Den lokale The Smithy Inn busstation ligger 5 minutters gåtur væk.
Mere +
Mindre -
Vent venligst, vi tjekker tilgængelige værelser til dig.
Vi søger hoteller
Faciliteter
Hovedfunktioner
- WiFi
- Kæledyr
Faciliteter
General:
- Rygning forbudt på alle fælles- og privatområder
- Wi-Fi
- Parkering
- Privat ind-/ udtjekning
- Kæledyr tilladt
- Røgdetektorer
- Brandslukkere
- Nøgleadgang
Middag:
- Kedel
- Tørretumbler
- Køkkengrej/ Køkkenredskaber
- Udendørs spiseområde
Bekvemmeligheder på værelset:
- Varme
- Dagligstue
- Terrasse
- Te- og kaffefaciliteter
- Spisebord
- Strygeservice
- Vaskemaskine
- Gratis toiletartikler
- Fladskærms TV
- Tæppebelagt gulv
Politik
Indtjekning: fra 16:00 indtil 22:00
Udtjekning: fra 09:00 indtil 10:00
Kort
Lokale seværdigheder
Lufthavne
- Blackpool International Airport (72 km)
Anmeldelser
Skriv anmeldelse
100% Verificerede anmeldelser
9.6 /10